
SUPERBES BUREAUX DE 235 M2 PARIS QCA
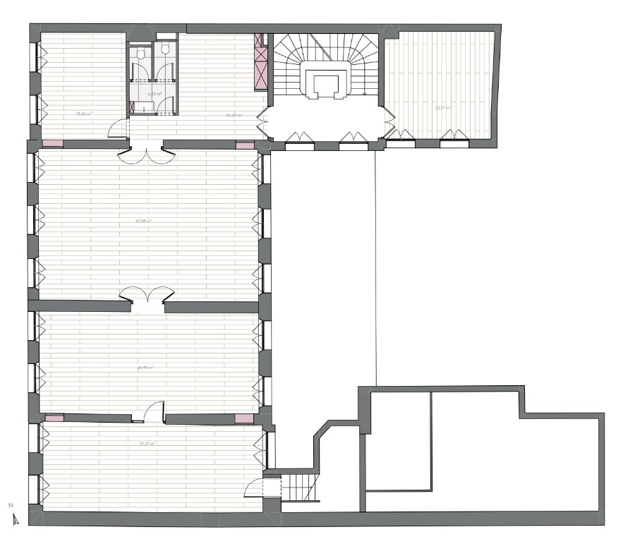
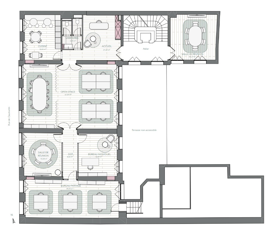
Dans un très bel immeuble haussmannien du square Opéra Louis Jouvet, nous vous proposons un plateau de bureaux spacieux et lumineux situé au 2ème étage.
L' espace est modulable, en open space ou en bureaux fermés en plus des salles de réunion.
Cet espace climatisé offrira un excellent confort à ses occupants qui pourront également bénéficier de la proximité immédiate des transports en communs : Stations Auber, Opéra, Havre-Caumartin et Saint-Lazare à quelques minutes à pied). Vous serez séduits par l'emplacement idéal de ces bureaux qui vous permettront de profiter des nombreux commerces, restaurants et théâtres situés aux alentours.
780€ /M2 HC PAR AN
- 235 m2
- |
- pièces
- |
- 20 pers.
- |
- 2e étage
- Salle de bain Non
- Salle d'eau Non
- Type de chauffage CPCU
- Surface divisée :
- Entrée palière gauche : salle de réunion de 20 m²
- Entrée parlière droite : bureaux de 205 m²
- Belle entrée et espace accueil
- Plan flexible : 3 grands espaces (open space, salles de réunion selon les besoins)
- Cuisine
- 2 sanitaires
- Quote part de parties communes : 10 m²
- Etat : restructuré
-
FRAPARD Charlotte +33 6 08 36 65 charlotte.frapard@cbre.fr
-
STAINCQ Victoire +33 6 72 25 80 victoire.staincq@bpce.fr
-
BARTHELEMY Guillaume +33 6 42 26 13 gbarthelemy@arrow-enterprise.fr